Black + White Kitchen and Baths

Berkeley, CA

Black + White Kitchen and Baths

Berkeley, CA

  • Year Built: 2017

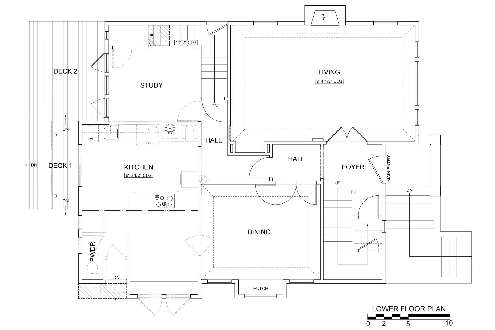
    The Owners wanted to open up living spaces at the back of their home. A Black and White palette accented by bright colors carries through this remodel of a Kitchen and two Bathrooms for timeless, classic appeal.

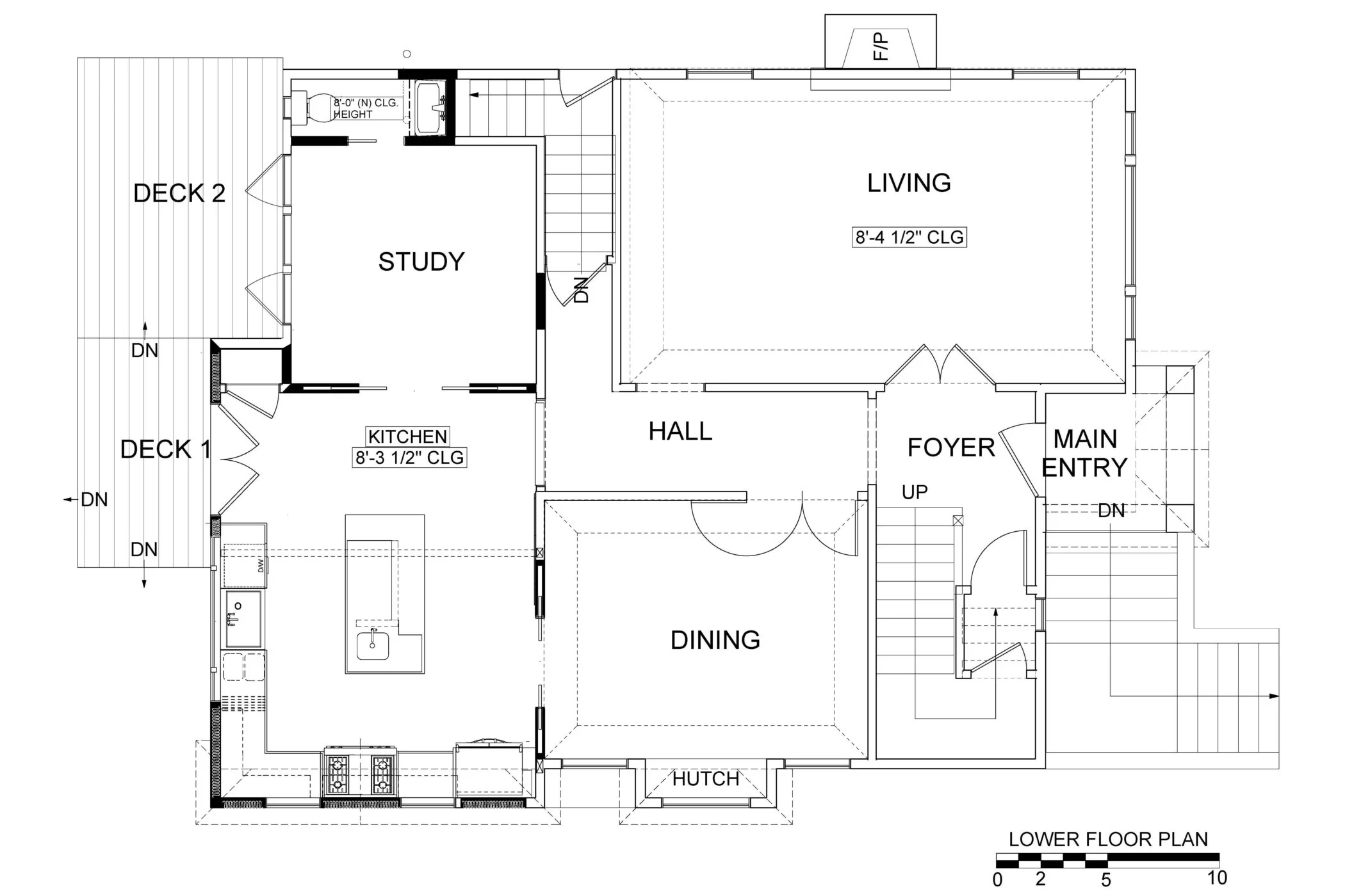
    Levitch reconfigured this area, relocating the Powder Room, eliminating the Nook, and creating an 11 SF addition at the corner of the home to expand and remodel the Kitchen and Study.

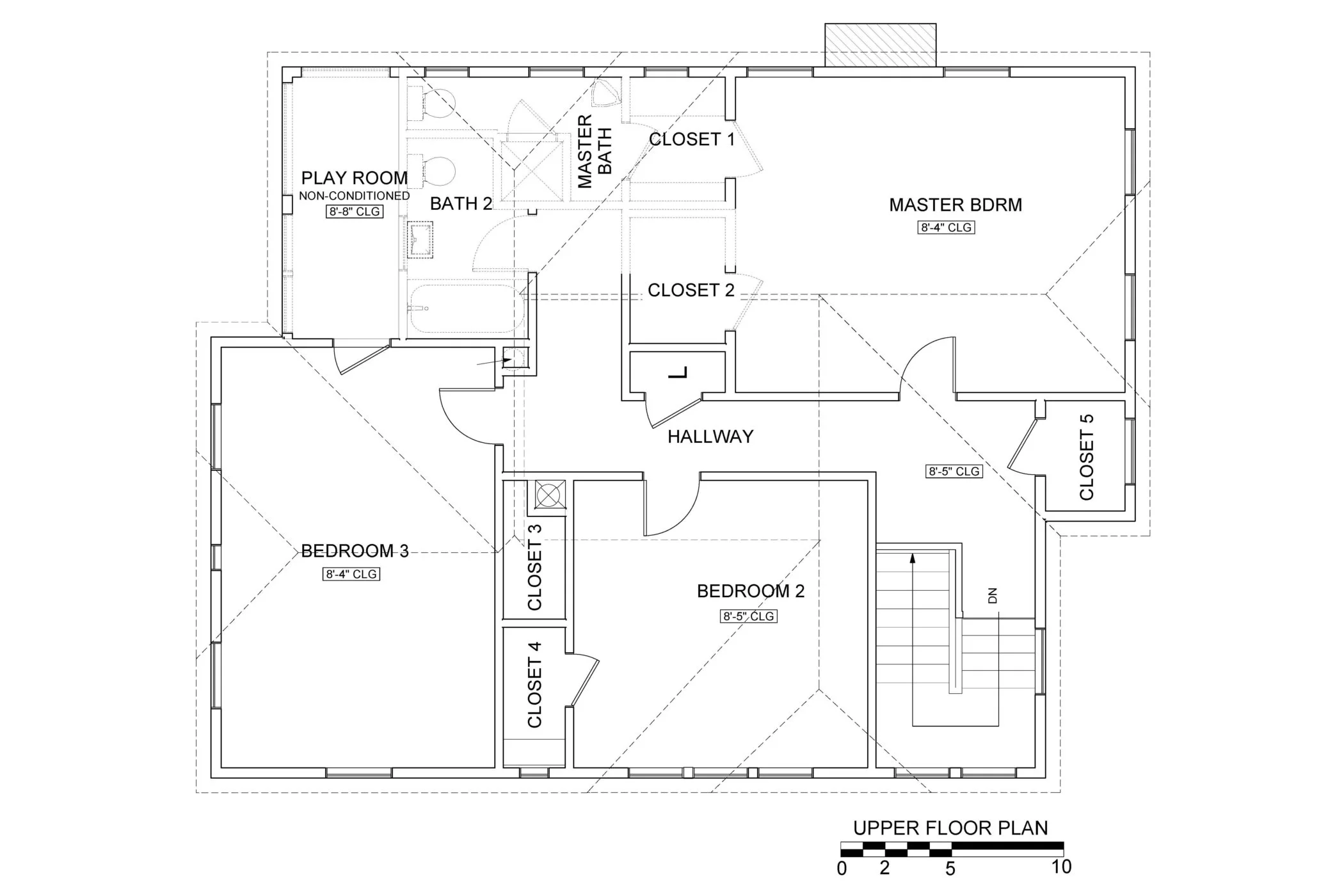
    • We also remodeled the Primary Bathroom and closet and included details from an earlier era such as the arched niches and doorways. Before there was just a shower, but now the new Bath has a separate shower and tub.

    • We converted the former unconditioned Play Room to a Bathroom that now serves the other two Bedrooms on the second floor. Classic black and white tiles are the perfect foil for pink and white walls and accessories.

    • The layouts for both Bathrooms changed during construction to what the photos show currently.

    Photography by Treve Johnson

  • See how things looked before we started below, including before & after floor plans.

Process

Before:

After:


Original kitchen before remodel, with dated cabinetry and tight layout prior to the 11-square-foot addition and reconfiguration.
Previous
Previous

Need a Lift?, Berkeley

Next
Next

Borrowing Space for Bathrooms, Oakland