Need a Lift?

Berkeley, CA

Need a Lift?

Berkeley, CA

  • Year Built: 2019

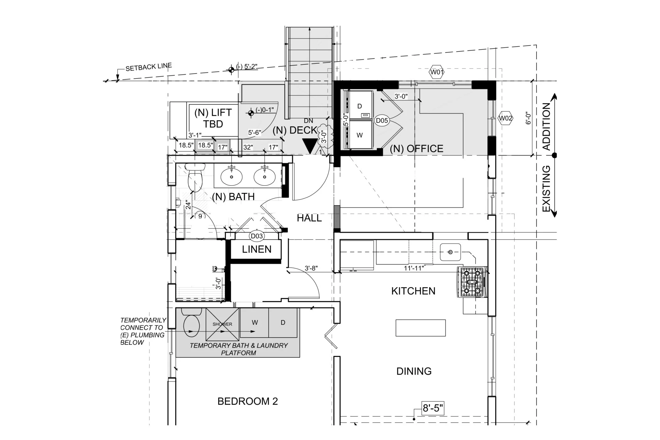
    A small addition allowed for an exterior lift and new Bathroom while maintaining the traditional character of a Bay area shingled home.

    As with many Bay Area homes, the house sits nearly a story above grade. The Owner wanted to make it easier for family to get in and out of the house as they age but didn’t want to alter the look of the front of the home. Despite constraints of a large protected oak tree at the back yard and the rear setback, by creating a 78 SF addition we were able to achieve multiple goals including a new lift at the back of the home.

    • At the upper level, the lift lands at a new deck that replaces the previous one. We matched the existing wood shingle siding at the addition.

    • We relocated Laundry to the expanded Office, which is now a dedicated space rather than a pass-through to the back deck and yard.

    • The addition and reconfiguration allowed us to create a new Pantry for the adjacent compact Kitchen as well as remodel the Bathroom, which still had the original tile.

    • Since this is a one-Bathroom home, we set up a temporary Bathroom and Laundry during construction. The new Bathroom has a curbless shower with a linear drain that sits below the bench to support aging in place. There is also a linen closet, and privacy glass in the Bathroom door allows for borrowed light to travel in and out of the Bathroom.

     

    Photography by Treve Johnson

  • See how things looked before we started, below, including before & after floor plans.

Process

Before:

After:


Rear exterior of Berkeley home before renovation, with wood shingle siding, rear stairs, and yard area slated for lift addition and accessibility improvements.
Back view of existing Berkeley home with wood shingle siding, aging stairs, and patio area prior to lift installation and structural renovation.
Original bathroom layout before remodel, featuring dated vanity, tile surround, and tub area planned for accessibility-focused upgrades.
Interior demolition during Berkeley home remodel showing exposed framing, removed plaster, and debris prior to lift installation and accessibility upgrades..
Construction team installing new exterior stairs and landing framing to accommodate lift addition and improved rear-entry access.
New concrete footings and rebar forming the structural base for the residential lift addition in Berkeley home renovation.
Shower remodel in progress with newly installed vertical tile and recessed niche as part of accessibility-oriented bathroom renovation.
Previous
Previous

Danville Dining, Kitchen + Deck, Danville

Next
Next

Black + White Kitchen and Baths, Berkeley