Arizmendi Bakery Lakeshore Remodel

Oakland, CA

Arizmendi Bakery Lakeshore Remodel

Oakland, CA

  • Year Built: 2018 - 2021

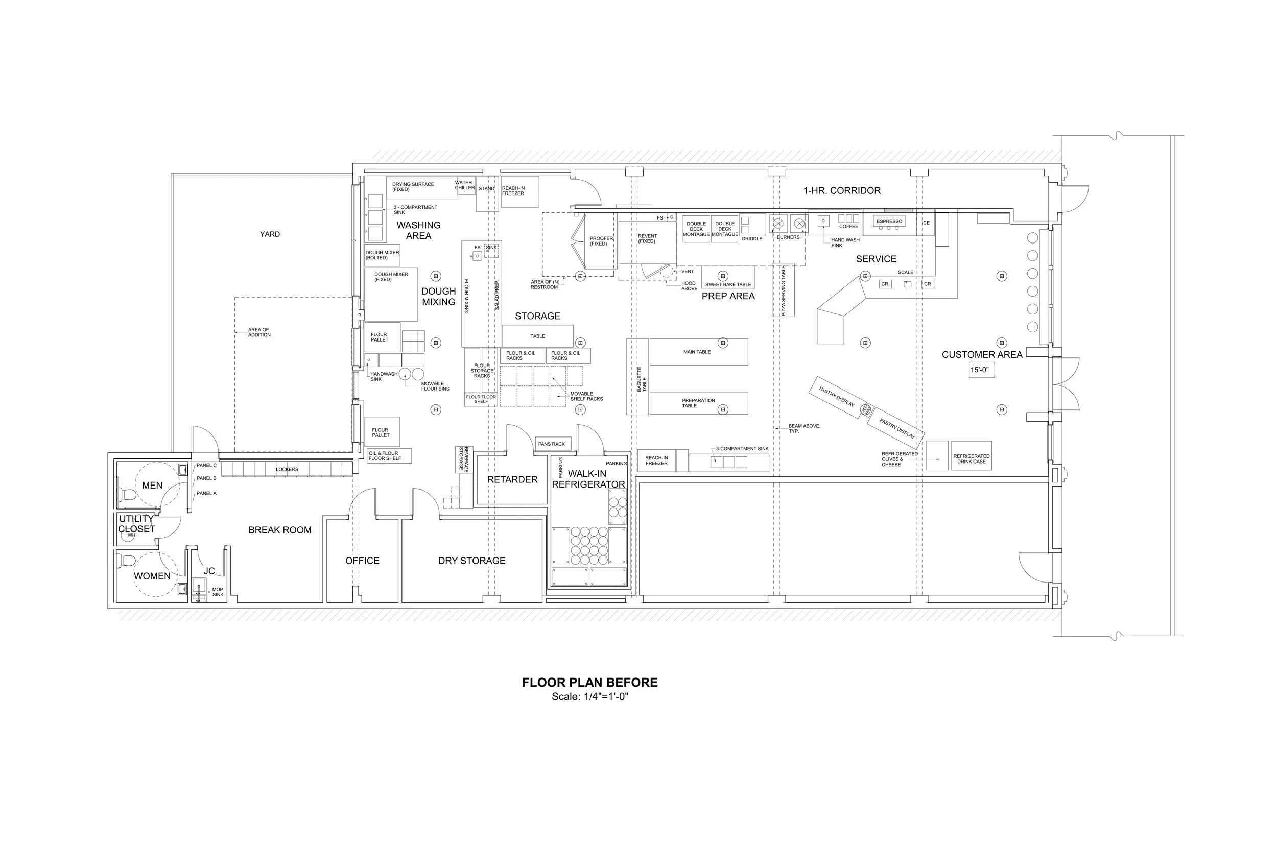
    The Bakery Was Bursting at the Seams

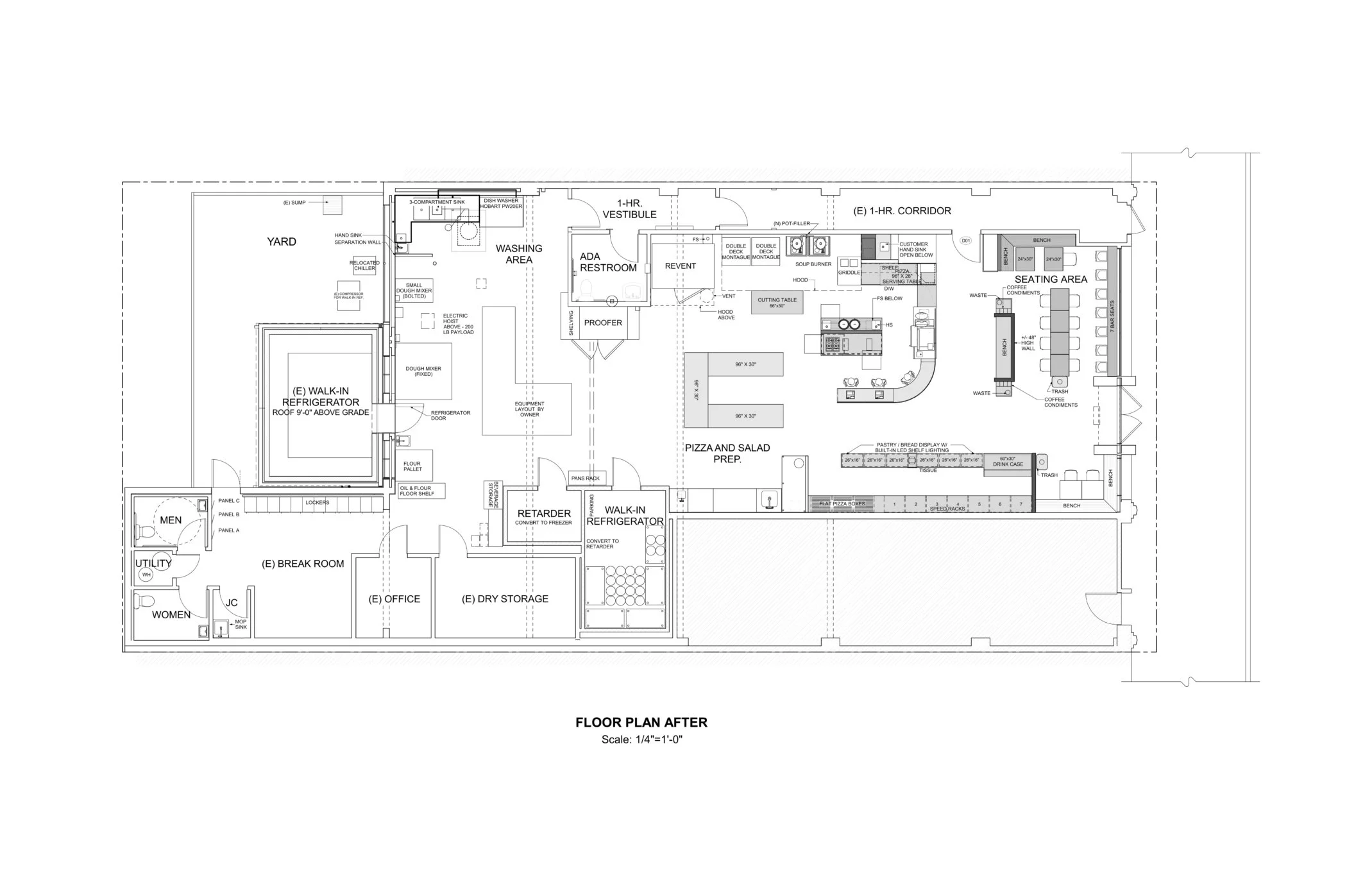
    This beloved bakery had gotten so popular there were often lines out the door onto Oakland’s busy Lakeshore Avenue. Once inside it was difficult for customers to navigate between self-service areas, fellow customers and the service counter. Workspace for bakers was equally cramped. Levitch designed and built a complete remodel for the space.

    • Levitch worked closely with the owners, a cooperative, to reorganize and reconfigure all spaces for better work and traffic flow within the same footprint.

    • To allow for funding over time as well as intense periods of construction during scheduled bakery closures, many over national holidays, the construction occurred in three phases from back to front.

    • The first phase included creating a walk-in refrigerator at the rear courtyard and an ADA compliant Restroom.

    • Phases two and three reconfigured and improved baking areas, created a larger customer area, added new flooring, lighting and other finishes.

    • Previous display cases had been hard to open when the bakery was crowded, so our work also included custom casework for self-service access to baked goods and a new curved service counter. The soffit above mirrors the arc of the service counter and offers space for menu boards and other items for sale.

    • New seating and tables are fabricated from reclaimed lumber and steel tubing, and there is a new customer handwash station.

    • This project earned NARI’s (National Association of the Remodeling Industry) award for Best Commercial Interior in 2021.

    Photography by Treve Johnson

  • See how things looked before we started, below, including before & after floor plans.

  • Levitch’s complete remodel of Oakland’s Arizmendi Bakery Lakeshore won NARI’s Best Commercial Interior award in 2021!

    We earned this award from NARI.org (the National Association of the Remodeling Industry) in their annual Remmy/BARA recognition of “excellence in remodeling in the Bay Area”.

    Projects completed in the last two years by members of one of three Bay Area NARI chapters were eligible. Entries were judged by industry experts, who scored submissions on problem-solving, functionality of the solution, innovation, craftsmanship, aesthetics, degree of difficulty and the entry presentation itself. For more information about the project, see the Project Details section above.

    Learn more about the bakery, a member of the Arizmendi/Cheese Board cooperative, and their daily selection of pastries, breads and pizza. They also offer seasonal and holiday treats.

Process


Previous
Previous

Adding History to Offices, Oakland

Next
Next

Bardo Lounge + Supper Club, Oakland