BIBO Salon

Oakland, CA

  • Year Built: 2019

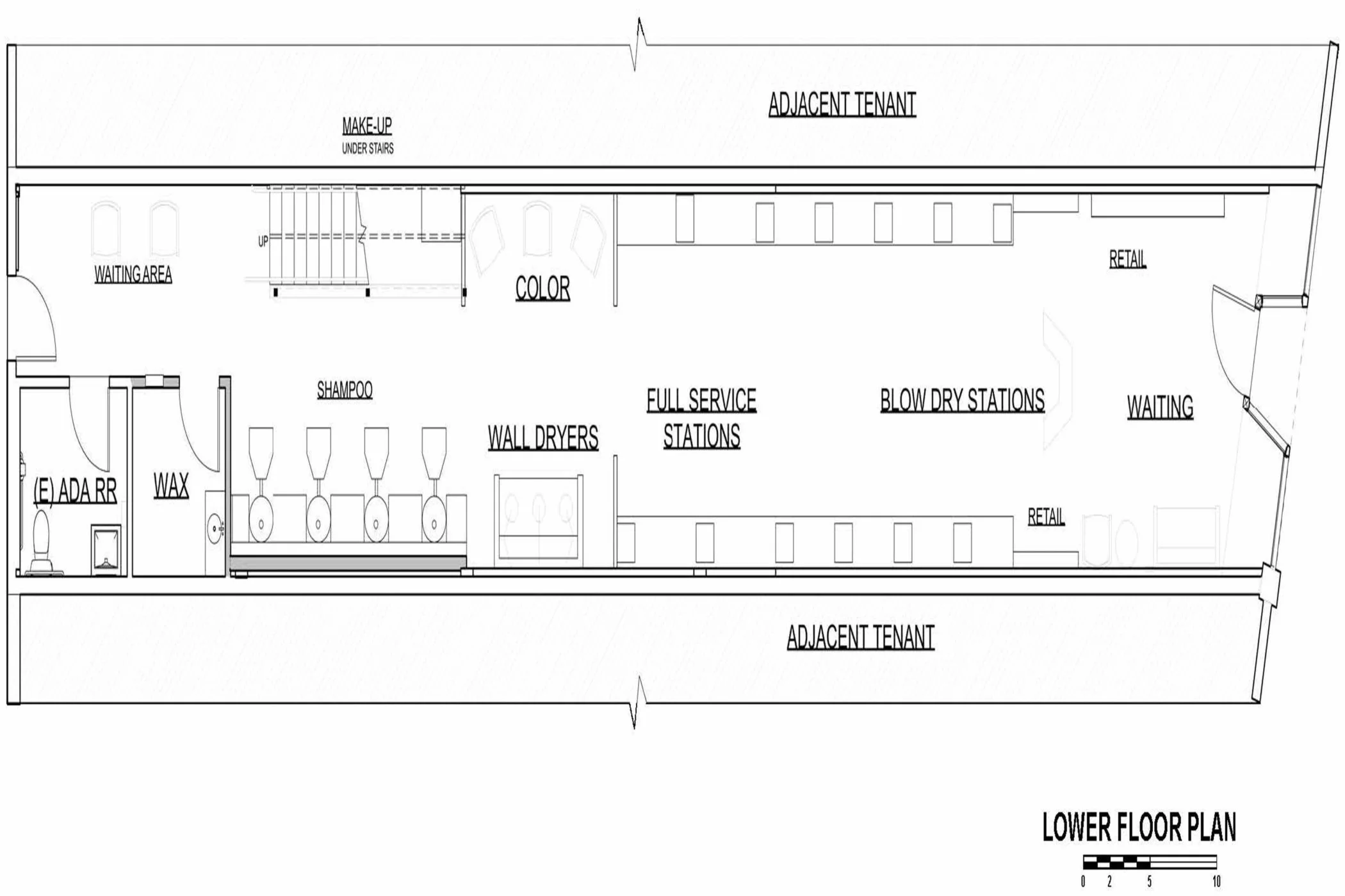
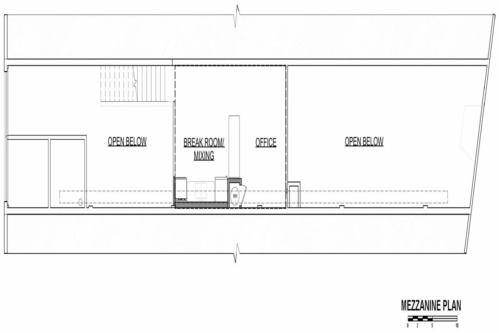
    BIBO desired to create a new full-service salon in Oakland’s Uptown neighborhood, featuring a mix of glam, rustic and industrial elements.

    Levitch was the architect and contractor for this tenant improvement project for a new Oakland salon, BIBO. Work included:

    • Designing and installing all of the fixtures, equipment, furniture, and finishes to create a new full-service salon

    • New signage at the facade

    Key features include:

    • A mix of glam, rustic and industrial elements

    • A custom-made reception desk and retail/display shelving faced with recycled wood, which carries into the shampoo area

    • Decorative laser-cut screens that delineate the styling, drying, and shampoo areas

    For more information about the salon, click here. For more information about the interior design firm, ARCSINE, click here.


    Photography by Treve Johnson

  • See how things looked before we started, below, including before & after floor plans.

BIBO Salon

Oakland, CA

Process

Before:

After:


Lift and retail accent wall installation at BIBO Salon
New plumbing installed at BIBO Salon
Front façade before renovation at BIBO Salon
Sawcut opening for new plumbing at BIBO Salon
New HVAC unit being hoisted onto roof of BIBO Salon
Marked floor showing sawcut path for new plumbing at BIBO Salon
Mirror mockup in styling area at BIBO Salon
Interior before construction at BIBO Salon
Previous
Previous

Cheeseboard Pizza Collective Parklet, Berkeley