Kitchen + Bath Blues

Berkeley, CA

Kitchen + Bath Blues

Berkeley, CA

  • Year Built: 2017

    The Owners purchased this home and started designing with Levitch right away. Touch-ups throughout the house were made to accommodate the Owners’ needs. The project includes remodels, revamps, and renovations. It was a big project to jump into, but Levitch was excited to complete the design and build for the Owners.

    Ground Story:

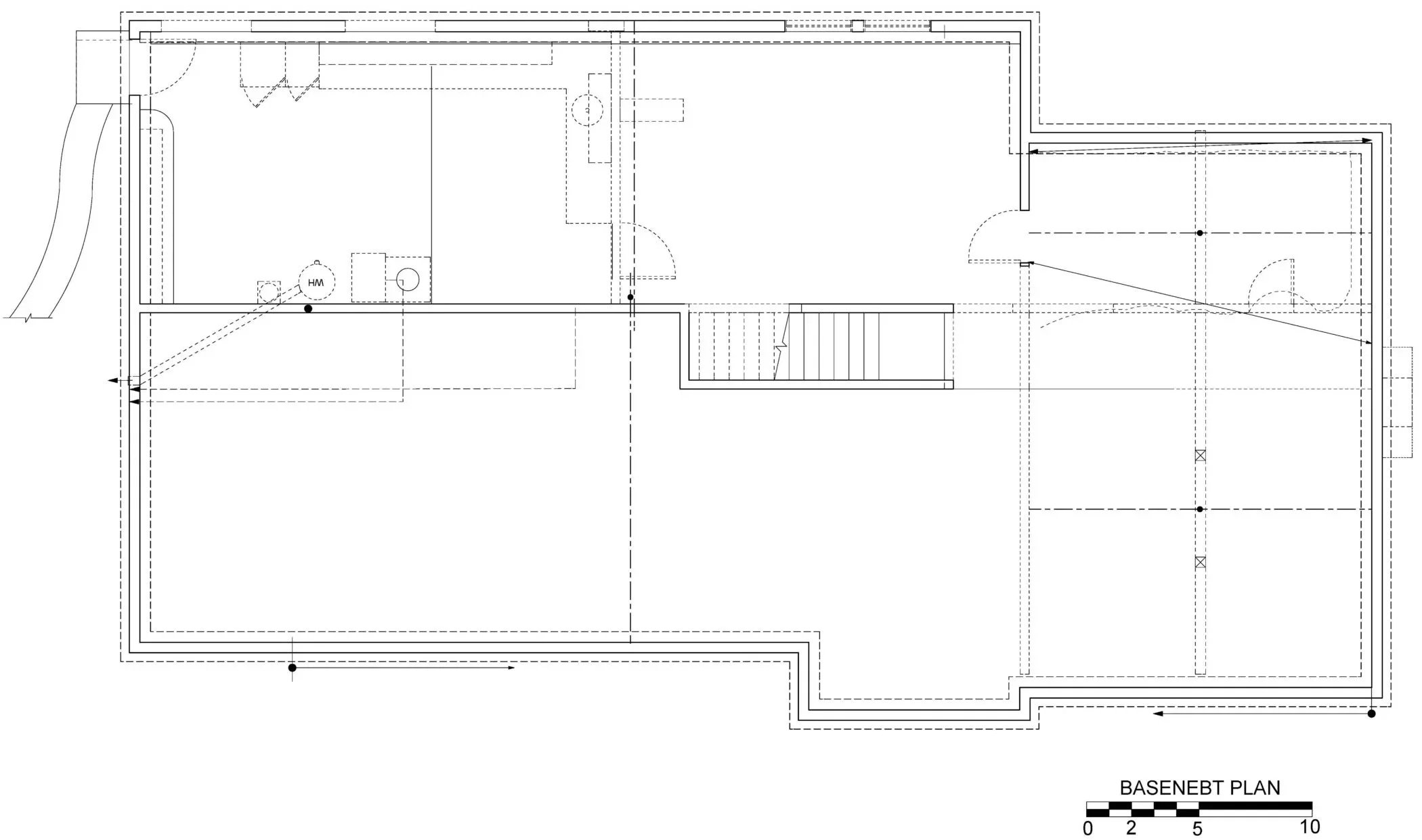
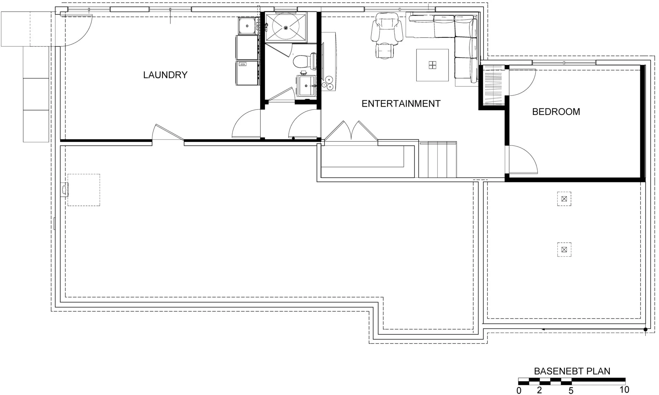
    • At the basement, there had been just a Family Room. We excavate by 1′ to get 8′ ceilings, converting the crawlspace to a Guest Bedroom and Bathroom.

    • We also relocate the Laundry to this level (not shown).

    Main Story:

    • The previous Kitchen had awkward angles that restricted access to the existing deck. By straightening out the wall, we achieve a more functional Kitchen, and create closets for the Primary Bedroom.

    • Then, we also create a wider opening between the Dining Room and Nook to improve circulation.

    • Next, we tuck in a Powder Room where the hall closets had been (not shown).

    • After that, Levitch removes the chimney and added a new gas fireplace.

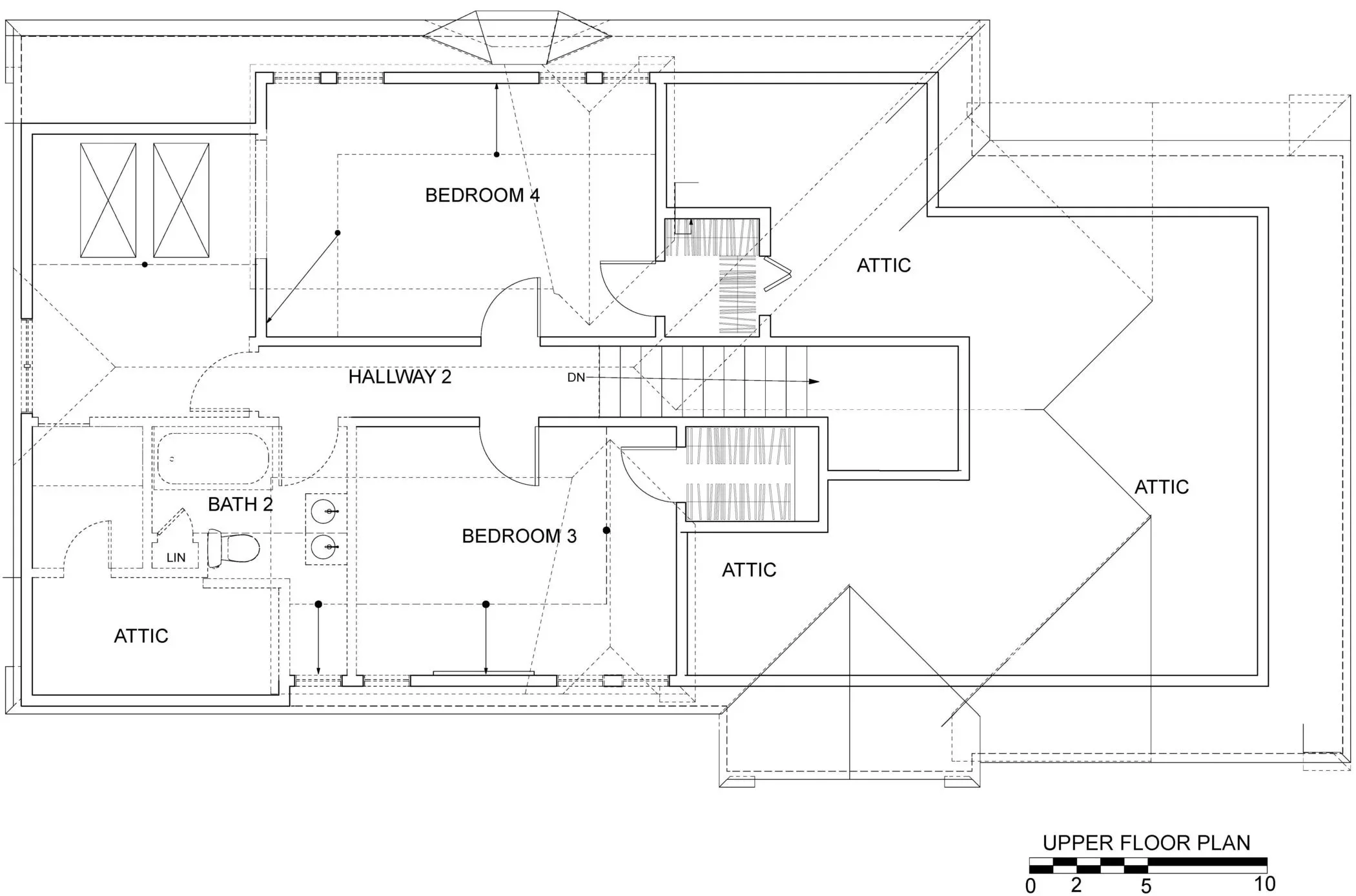
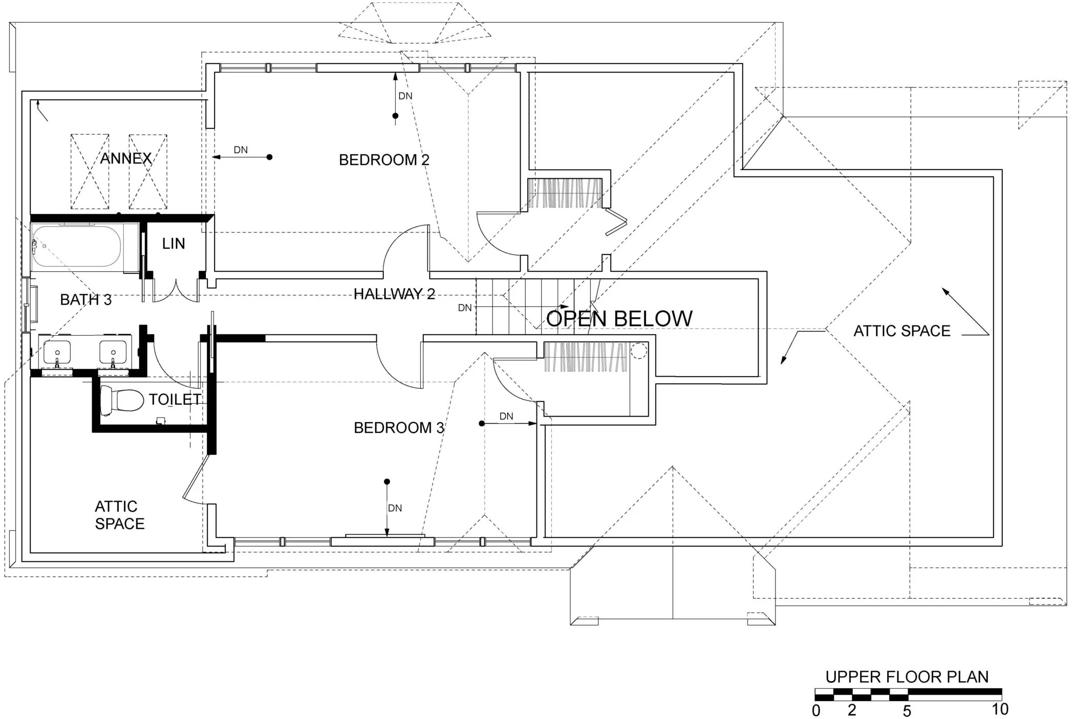
    Second Story:

    • Finally, Levitch reconfigures and remodels the Bathroom, yielding more space for adjacent Bedrooms.

     

    Photography by Treve Johnson

  • See how things looked before we started, as we as before + after floor plans, below.

  • “We hired Maurice and Levitch Assoc. after moving to Berkeley from the East Coast and purchasing an older home described as having “good bones” (code for “needs a lot of work”). We initially started out with a smaller project in mind planning further renovation at a later time, and I interviewed several architects and other design build firms to discuss the foundation, basement renovation, kitchen changes and bathroom renovations. Maurice was the only architect I interviewed who actually had ideas on the spot, including how to convert quirky former attic dormer space upstairs to maximize bedroom space and create a good- sized functional bathroom for our kids.

    I liked Maurice immediately, so we hired Levitch and Maurice created two well thought out design schemes for us to choose from. The designs included a media room, guest room and bath in our basement, as well as other configuration changes upstairs (maximizing the kids’ space), adding a powder room to our main floor, creating a larger en suite bath, and laying out a huge galley kitchen. Ultimately, in addition to these plans, we upgraded all the systems in the house, excavated our basement and re-did 3/4 of the foundation, re-did our deck, chimney and fireplace, and replaced all the windows and most doors among other interior finishes. It was a larger project than we originally intended but we are thrilled that we did all the work now and that we hired Levitch to do it for us.

    Maurice is professional, amiable and easy going, just an all around good guy and pleasant to work with. His project manager, Vuk, was lovely as well, as were all the Levitch workers and their subs. They were careful, reliable and respectful, and their work is of the finest quality. The finished product is beautiful, and I get compliments on my house every time someone walks in. We are grateful that we were able to do this project and that we worked with Levitch.”

    J. T.

Process

Upper Floor + Basement Plans (Before):

Upper Floor + Basement Plans (After):


Previous
Previous

Warm Modern Remodel + Addition, Albany

Next
Next

Berkeley Bungalow Grows Up