Serene Second-Story Bedroom Suite

Oakland, CA

Serene Second-Story

Bedroom Suite

Oakland, CA

  • Year Built: 2019

    Our work includes a serene second-story addition for an Owner’s Bedroom Suite paired with refreshing living spaces at the main level.

    Second Story Addition:

    • The new Suite includes a Bedroom for the Owner with a walk-in closet and an Office. The Bathroom is designed for relaxation with a steam shower and calm, neutral palette.

    • There’s also a balcony that offers a perfect spot to begin or end the day.

    • It was easiest to rebuild the Garage as part of the second story addition (see photos below).

    • During construction, the Owner decided to replace the drive and walkways with pavers.

    Main Level:

    • Update the Kitchen and Family Room: Fabricate new Kitchen cabinet doors, install a new countertop, design and build new entertainment center cabinetry and add lighting.

      • Levitch promised the Owner that while we were building her new media cabinets she could still watch TV every night. It took extra time to unplug and reconnect everything daily but it was all part of our service. We also rescued a neighbor’s family member during construction, which is another story* (described below + an accompanying note shown in process section).

    • Transform a Bathroom into a Powder Room and Laundry Room.

    • Replace fixtures at the existing Bathroom.

    • Borrow space from the Living Room to create a new stair to the upper story.

    Photography by Eric Kessler

    *The crew at one of our construction sites heard someone calling for help. The voice turned out to belong to a neighbor’s mother-in-law. The children had inadvertently locked her in the garage (or so the story goes). She was able to direct our team to a key so we could let her out of the garage.

    A couple of weeks later, Maurice Levitch was at the site preparing for drywall and saw a box of cookies with the note. Originally he thought they were from the neighbor, but they were a thank-you from our client for helping to keep peace in the neighborhood despite the inconveniences of construction. We’re fortunate to work with such thoughtful clients!

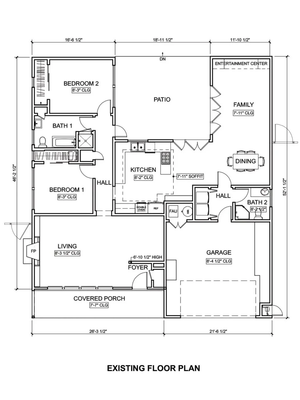
  • See how things looked before we started and before and after floor-plans, below.

  • I hired Levitch Associates to add a second story, update my kitchen, add a laundry room and guest bath, and update some cabinetry. It was a big project, a little frightening, but I could not be happier with the results. Everyone I worked with at Levitch, from design through estimating to construction and finish was friendly, helpful and professional. Maurice and his team are a pleasure to work with and the work they do is impeccable. Every day I am relieved I trusted my house to them and am grateful for the way they transformed my home.

    K. D.

Process

Before:

After:


Front exterior view before remodel, with entry walkway and garage
Wide front elevation photo before remodel, showing chimney, single-story profile and landscaping
Original kitchen before remodel, showing cabinetry, countertop and wood flooring under natural light
Living/family room before remodel, built-in shelving and TV alcove
Wood handrail being clamped and installed along stairway under construction
Upstairs stairwell framed and drywalled with skylights and door to new balcony
Shower tile installation with glossy subway tile and patterned accent panel
Shower pan with waterproof liner and wall insulation during installation
Driveway excavation in front yard, dirt exposed for new paving
Garage demolition with removed roof and exposed framing
Second-story framing with weather-resistive wrap and scaffold
Thank you note for neighbors mother in law!
Previous
Previous

Light-Filled Craftsman, Berkeley